Sold

20 Sir Joseph Banks Street, Botany

SOLD

1 1

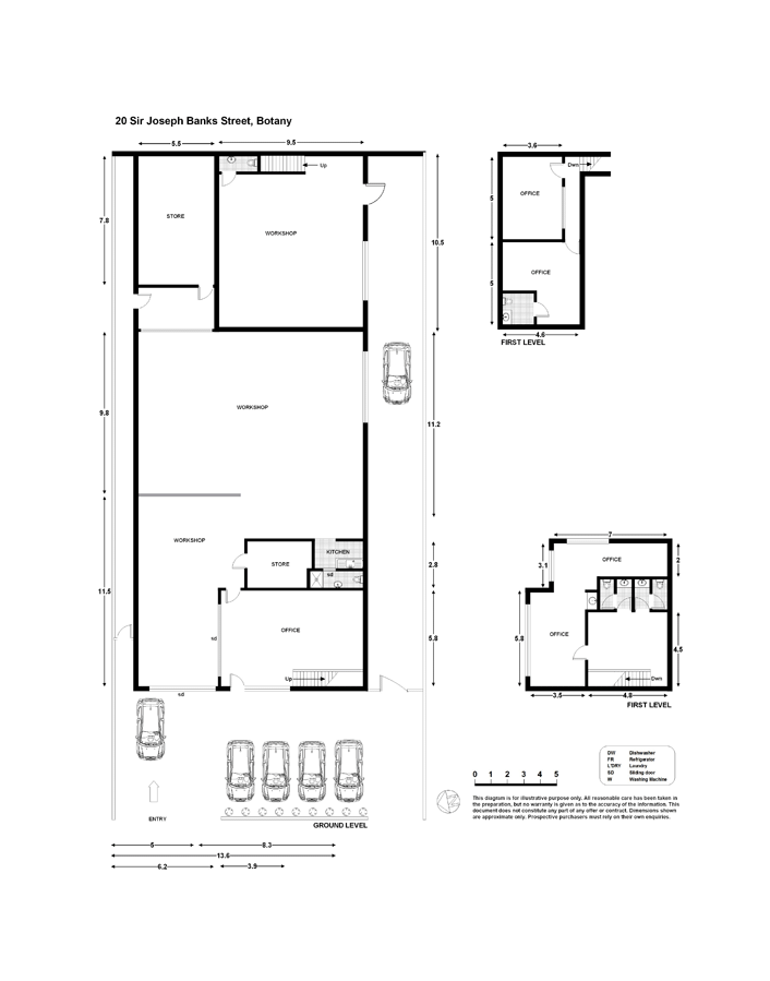
INDUSTRIAL FREESTANDING WAREHOUSE

This modern freestanding warehouse is very well located in Botany. The property offers exceptional proximity to Sydney's CBD, Port Botany Container Terminal, Sydney Airport, and major link road such as the Eastern Distributor and the M5 Motorway.
There are two separate office accommodation areas within this building, one is situated at the front of the building, above the reception. And the other is located at the rear of the warehouse.

Key Features:
- Great exposure
- Freestanding building
- High clearance clear span warehouse
- First floor office space with two bathrooms.
- Container height roller door access
- Excellent truck access

Areas:
Approximately 600sqm of internal space.
Land Total of 720sqm.
1 1

Details

Address 20 Sir Joseph Banks Street, Botany
Price SOLD
Property Type Residential
Property ID 780
Category House

Tools

Share This Property