Sold

3, 95 Perouse Road, Randwick

SOLD

2 1

SET IN THE HEART OF RANDWICK

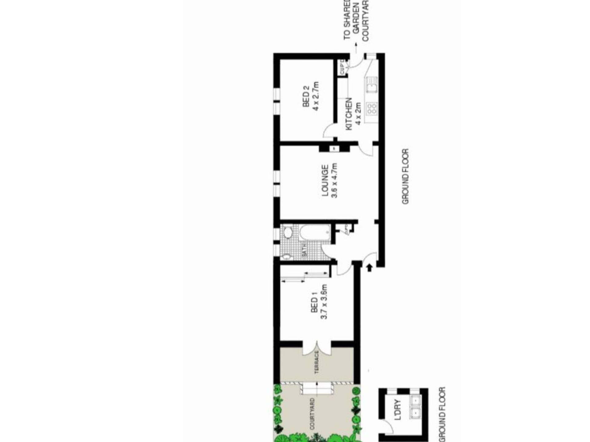
Set in the heart of Randwick's liveliest cafe precinct, this garden apartment is one of only four in a picturesque period block. Well presented, generously sized and brimming with traditional details, it offers an ideal entry into a desirable locale.

- Timber floors, original leadlight windows, picture rails
- Generous living and dining area with fireplace
- Private terrace and courtyard off the master bedroom
- Direct access to a lush, leafy communal garden area
- Neat modern kitchen, bathroom with combined bath/shower
- Master bedroom includes a large built-in wardrobe
- Footsteps to the cafes and restaurants of The Spot
- Stroll to the Ritz Cinema and express city transport
- Walk to Prince of Wales Hospital, minutes to Coogee Beach
2 1

Details

Address 3, 95 Perouse Road, Randwick
Price SOLD
Property Type Residential
Property ID 852
Category Unit

Tools

Share This Property